賃貸物件詳細

← 賃貸物件一覧ページへ戻る

JANUS residences南平岸駅前 206号室

賃料9.6万円 管理費:6,000円

  • [ 敷 金 ] 9.6万円
  • [ 礼 金 ] なし
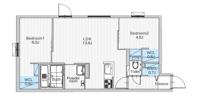
  • [ 間取り/面積 ] 2LDK/53.61㎡
  • [ 所在地 ] 札幌市豊平区平岸3条12丁目4番16号
  • [ 交 通 ] 地下鉄南北線南平岸 徒歩3分
  • [ 築年月 ] 2024年2月
  • [ 駐車場 ] 空きなし

お電話でのお問合せ・ご相談

0120-329-096

営業時間/9:00〜19:00(定休日:日曜日・祝日)

【 物件概要 】

所在階/階建 2/地上4階建 総 戸 数 22戸
主要採光面 西 建 物 構 造 RC造
契 約 期 間 - 更 新 料 なし
現   況 2月末退去予定 引 渡 し 相談
その他費用 ・インターネット:壁埋込型Wi-Fi月額1,000円(上り下り1Gbps共有)使用有無に関わらず費用発生致します。・募集戸数:22戸・保証会社:全保連・保険:保険要加入 宅建ファミリー共済 2年契約 20,000 ~ 24,000円(*1LDK20,000円 *2LDK24,000円)・退去時室内清掃費用:23,100円(税込/契約時)1LDK・退去時室内清掃費用:34,100円(税込/契約時)2LDK・FF分解清掃費用:23,100円(税込/契約時)・24時間駆け付けサービス:880円(税込/月額)・トランクルーム利用料:無料・町内会費:200円(非課税/月額)
設備/特徴 【キッチン】 給湯器(プロパンガス)・ガスコンロ(3口)・システムキッチン 【水廻り】 風呂(ユニットバス)・トイレ(水洗)・洗面台(独立)・シャワートイレ 【冷暖房】 エアコン(冷房のみ)・暖房(灯油) 【収納】 ウォークインクローゼット・シューズボックス 【放送・通信】 BS・CS・光ファイバー(光配線方式)・UHFアンテナ(地デジ用)・インターネット対応(回線工事不要・契約不要) 【セキュリティ】 オートロック・宅配BOX・防犯カメラ・インターホン(カメラ付き) 【その他】 専用ごみ置場・エレベーター(1基)・自転車置場・ロードヒーティング・電気・ガス(プロパンガス)・水道(公営)・排水(公共下水)・照明・網戸・24時間換気システム

備   考 内装写真は竣工時のものです。
取 引 態 様 代理

※その他所定の費用がかかる場合があります。

※ジン不動産グループが媒介する場合があります。

※媒介物件は仲介手数料を申し受けます。
(仲介手数料には消費税及び地方消費税がかかります。)

物件所在地

お電話でのお問合せ・ご相談

011-816-0808

営業時間/9:00〜19:00(定休日:日曜日・祝日)